Defines
Setting Standards and Raising Bars
The strategic location of your business significantly enhances its potential for success. Introducing Arista Arise, an upcoming commercial property nestled in the heart of Prahladnagar, offering prime positioning without the hassle of city traffic. Its strategic placement ensures convenient accessibility, making it an ideal choice for your corporate endeavours.
Rera No. - Awaited
Prominent Business Location
Surrounded by a Mix of Residential & Commercial Suiting all Types of Businesses
Vastu Compliant Spaces
Road Facing Spaces
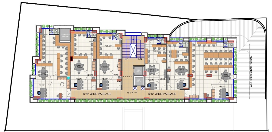
Layouts & Plans
Specifications That Elevate
Our Signature Specifications
- Outdoor Display for every space
- Green Belt – Plated Space for Front Spaces
- Elevators
- Wifi Connectivity Across the Property
- Ample Parking Space
- 24X7 Safety Measures
- Anti Termite Treatment
- Water Proofing
- Electrification
- High-end Security
Project Specifications
- Strategically located Near to 100 ft. wide road at Prahladnagar,
the commercial hub, Ahmedabad. - On route connecting to shyamal
- Two high speed elevators
- WiFi connectivity in common foyer
- Sufficient car & scooter parking space
- Exclusive parking area allocated to visitors
- Provision of two basement exclusive for parking
- Professional security with 24hour manned security
- Hightech CCTV cameras for all common areas for monitoring and vigilance
- Technically qualified maintenance team for efficient and prompt service
- Earthquakeresistant frame structure according to ( IS: 1893 and IS: 13920)
- Large column to column grid for amazing interior
- For showrooms clear floor height of @ 13’.0” ft., for offices clear floor height of @ 10’.0” ft.
- Aluminium windows for better sound and heat insulation
- Dedicated space for installing outdoor unit with provision of A.C. drain
- Stair with S.S/Glass railing
- All Showrooms and Offices as per “vastu”
Building Specifications
- Earthquakeresistant frame structure (IS: 1893 and IS: 13920)
- High grade, quality controlled concrete work; High grade branded TMT Steel of Tata/Vizag/SAIL or equivalent Floor height: G.F. 13’.0”, F.F 12’.3”, S.F. 11’.8”, Tipical 10’.0”
- Masonry: Bricks/C.C. blocks with better heat/Fire resistance
Inside wall:
- Single mala plaster with three coat of Birla putty
- Tiles dado in wet areas
External Facade:
- Single mala plaster with stone cladding/texture finish/glazing
- Water repellent coating on external wall
- Standard Vitrified tiles
- Staircase: Antiskid granite stone with granite skirting
- Ground Floor: Italian marble/premium granite
- Basement: Rough Kotah stone/heavy duty paver/R.C.C. Trimix in basement and ramp
- Window Sill: Granite stone
- Terrace Area: China mosaic for heat resistance and waterproofing with 5 year warranty
- Toilet: Vitrified/Glazed/Ceramic tiles
- Tube well and underground water storage tank to ensure 24hour water supply
- CPVC Pipes for water supply
- Welldesigned open plumbing and sewer system in accessible shafts for easy maintenance
- Superior quality S.W.R. system (supreme or equivalent)
- Percolating wells for rainwater harvesting
- C.P. Fitting of Jaguar/ESS or equivalent and sanitary ware of Cera/Hindware
- Pre construction antitermite treatment with 10 year warranty
- CCTV cameras for common areas
- 24hour manned security for all common areas of the complex including the grounds
Unit Specifications
Infrastructure facilities have been provided to receive various communication links
- Dish TV cable provision
- Broadband internet connection porvision
- Decorative main door with safety features
- Internal doors with granite frame and laminated flush doors on both sides
- Superior quality brass S.S. finish hardware
- Aluminium windows
- Good quality guaranteed waterproofing treatment in toilets and terrace area with 5 year warranty
- Power supply: made available from Torrent Power Ltd. (through outdoor type substation)
- Keeping in mind various requirements such as Lighting, Air conditioning, Computers and Server rooms, etc. facility of adequate single point 3phase power supply
- ISI copper wiring, MCB and ELCB distribution board ensuring maximum safety
- Critical/Emergency Lighting/Backup power supply system
- Backup power supply system for lifts and pumps and emergency lighting will be available in the complex (power cuts as such are rare in Ahmedabad)
- Compact and fuelefficient DG sets shall be provided with electronic monitoring system
- Dedicated earthing (chemical earthing system) planned for all users providing them their own dedicated earthing system for various requirements
- Welldesigned and wellequipped fire safely system as per NBC norms for common areas with Extinguishers, Wet Risers/Hose reels and Handheld extinguishers
- Adequate provision for installation of fire fighting equipments and addressable or conventional fire alarm devices/panels at all levels
- Fire Alarm System: Hybrid fire alarm system with addressable main fire alarm panel located in Security and Fire control room on ground level along with repeater panel in security table
- Rough Kotah stone/Heavy duty precast concrete pavers in main driveway and dropoff areas
- Polemounted fixtures and customdesigned bollard lighting
Stand at Arista Arise:
The Right place to Rise
Strategic Hub
Elevated Presence
Networking Nexus
Seamless Connectivity
Arista Arise Contributors

Mr. Rikin Mody
Mr. Rikin Mody, a founding member, has been instrumental in the company's growth. With a background in Civil Engineering and over 25 years of experience in infrastructure management, he plays a key role in planning, executing, and expanding projects. His expertise also extends to areas like public relations, employee engagement, and human resources. Not only does he ensure the seamless integration of infrastructure, but he also serves as a director in several other companies, making him a valuable asset to our team.

Mr. Nikur Mody
Mr. Nikur Mody, a founding member, possesses a profound understanding of the industry coupled with strategic expertise. He not only provides vision and leadership but also oversees strategic planning, business expansion, and market development, along with managing corporate functions in business development and finance. With an MBA in International Business and Finance and a background in Computer Technology, he skillfully blends technology and business, driving the diversification of business into various sectors. Previously associated with esteemed firms such as L&T Information Technology and Mastek Ltd., his innovative strategies have empowered businesses, transforming solutions into value.
We have a legacy spanning more than five decades in the real estate industry. Explore properties and projects .
Get in touch with us
With a legacy spanning more than five decades in the real estate industry, we invite you to explore other properties and projects by our group company through the following link.
Address
505, Arista, Anandnagar road, Ahmedabad 380015, India
Have any question?
+91 9099924742
Write email
arista@snehdeep.co.in